Добро пожаловать на http://vipplan.ru

Випплан Ликино-Дулево - это тысячи проектов домов в нашем каталоге!

Вы всегда сможете найти для себя проект дома вашей мечты! Даже если этого не случилось, мы готовы в любую минуту предложить проект индивидуального дома.

Забыли пароль?
Вы еще не регистрировались?

Перейдите по ссылке ниже на страницу регистрации.

Регистрация...

Внимание!!!

В проектную документацию могут быть внесены изменения любой сложности, в соответствии в Вашими пожеланиями!

Полезные статьи

Применение свайных фундаментов

Сваи представляют собой длинные стержни, погруженные глубоко в грунт или изготовленные непосредственно в грунте. Покупные сваи с одной стороны имеют заостренный конец, который забивается в почву с помощью специальной техники. Установка свай, изготовленных своими руками, предполагают бурение скважин, армирование и заливку бетонного раствора. ...

Дом это прекрасное вложение

Современный рынок недвижимости диктует свои правила. Цены на землю и недвижимость в Ликино-Дулево постоянно растут и вынуждают по-другому смотреть на покупку собственного дома. Не только со стороны получения удобного, благоустроенного жилья, но и со стороны капитализации и инвестировании своих средств...

Проекты домов и коттеджей > Каталог проектов домов > Проект просторного особняка Vg2288

Проект просторного особняка Vg2288

Проект просторного особняка
Зарегистрируйтесь

Проект № Vg2288


Техническое описание
Общая площадь: 532.89 м2
Жилая площадь: 221.13 м2
Высота здания: 9.9 м
Размеры дома: 16.22м×32.02м
Кол-во комнат: 8
Цокольный этаж: нет
Гараж: нет
Мансарда: нет

Kонструкция
Фундамент: ленточный из блоков ФБС
Перекрытия: сборные плиты
Материал стен: Кирпич

Архитектурный раздел
Конструктивный раздел
АР+КР - 132 000 (Со скидкой 20%)
Проект индивидуального двухэтажного жилого дома с подвалом с размерами здания16,22x32,02 м. Наружная отделка здания - облицовочный кирпич 2х цветов. Пояс из облицовочного коричневого кирпича по низу окон 2 этажа. Цоколь - клинкерная плитка. Фундамент - ленточный из блоков ФБС (под несущими стенами). Наружные стены здания: рядовой кирпич с утеплением экструдированным пенополистиролом, тех.зазором и отделкой облицовочным кирпичом. Внутренние стены и перегородки - рядовой кирпич. Пол Гаража и Мастерской - пол по грунту. Пол 1 этажа - сборные плиты перекрытия. Межэтажное перекрытие - сборные плиты перекрытия. Под сборные плиты перекрытия выполняется арм.пояс. Чердачное перекрытие - по деревянным балкам с использованием теплошумоизоляционных материалов типа "URSA" в межбалочном пространстве. Под деревянные балки перекрытия выполняется арм. пояс. Крыша - многоскатная. Окна - металлопластиковые, выполнить по индивидуальному заказу. Лестница - металлическая, выполнить по индивидуальному заказу.
Генплан застройки участка / Паспорт проекта 7000 руб / 10000 руб
Инженерный раздел (полный) 266500 руб
Смета на строительство 133250 руб
Теплотехнический расчет материалов стен Бесплатно
Стоимость проекта со незначительнми изменениями 151650 руб
Стоимость проекта со средними изменениями* 191700 руб
Стоимость проекта со значительными изменениями** 202300 руб

План цокольного этажа


Помещение 1 — 14,88 кв м

План первого этажа


Тамбур — 7,32 кв м
Гостевая — 16,44 кв м
С/у 1 — 4,78 кв м
Гараж — 60,12 кв м
Мастерская — 9,66 кв м
Прихожая — 6,65 кв м
Гардероб — 6,29 кв м
Гостиная — 67,68 кв м
Холл — 19,57 кв м
С/у 2 — 2,88 кв м
С/у 3 — 2,88 кв м
Кладовая 4 — 7,35 кв м
Кухня — 18,00 кв м
Кладовая 3 — 7,36 кв м
Бойлерная — 11,64 кв м
Комната отдыха — 23,00 кв м
Хамам — 22,92 кв м
Кладовая 1 — 16,81 кв м
Кладовая 2 — 16,81 кв м

Проект просторного особняка

Проект просторного особняка

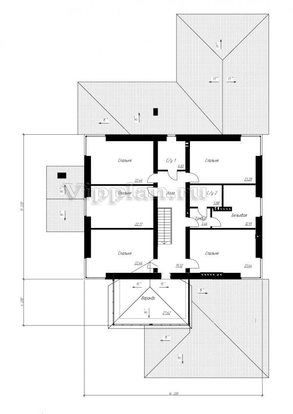
План второго этажа


Холл — 19,32 кв м
Спальня — 22,46 кв м
Спальня — 22,17 кв м
Спальня — 22,46 кв м
С/у 1 — 6,65 кв м
Спальня — 23,28 кв м
Тамбур — 3,46 кв м
С/у 2 — 5,88 кв м
Бойлерная — 12,91 кв м
Спальня — 23,64 кв м
Веранда — 27,62 кв м
Проект просторного особняка Проект просторного особняка Проект просторного особняка Проект просторного особняка

Модификации проектов

Внесение изменений и привязка к участку строительства

В любой из проектов от компании VIPplan - Ликино-Дулево по вашему желанию могут быть внесены изменения в материалы стен, материалы наружной отделки дома, а также будет произведена адаптация проекта под конкретный регион строительства (с учетом грунтов региона, геологических особенностей вашего участка и местных климатических условий) - БЕСПЛАТНО !!! (кроме проектов со скидкой и проектов наших партнеров).

Любой из проектов, размещенных на сайте likino-dulevo.vipplan.ru мы можем выполнить из требуемых вам строительных материалов: ячеистый бетон (газобетон, пеноблок), керамоблок, кирпич, шлакоблок, бетонный блок, дерево (брус, клееный брус), каркасная технология (деревянный каркас, металлокаркас (ЛСТК)).

Фасад дома и его наружную отделку так же возможно выполнить с применением различных облицовочных материалов: структурной штукатурки, (с утеплителем и без), сайдингом (пластиковый или металлосайдинг), фиброплитами, кирпича.

 
6 Избранные
проекты

Доставка проектов по России: Москва (Московская область), Санкт-Петербург (Ленинградская область), Краснодар, Ростов-на-Дону, Ставрополь, Сочи, Волгоград, Новосибирск, Белгород, Брянск, Воронеж, Саратов, Хабаровск, Астрахань, Нальчик, Владикавказ, Екатеринбург, Тюмень, Самара, Нижний Новгород, Казань, Пермь, Уфа, Челябинск, Красноярск, Ханты-Мансийск, Иркутск, Курган, Оренбург, Омск, Томск, Барнаул, Новокузнецк, Кемерово, Абакан, Чита, Якутск, Южно-Сахалинск, Петропавловск-Камчатский и страны ближнего зарубежья: Белоруссия, Украина, Казахстан