Добро пожаловать на http://vipplan.ru

Випплан Ликино-Дулево - это тысячи проектов домов в нашем каталоге!

Вы всегда сможете найти для себя проект дома вашей мечты! Даже если этого не случилось, мы готовы в любую минуту предложить проект индивидуального дома.

Забыли пароль?
Вы еще не регистрировались?

Перейдите по ссылке ниже на страницу регистрации.

Регистрация...

Внимание!!!

В проектную документацию могут быть внесены изменения любой сложности, в соответствии в Вашими пожеланиями!

Полезные статьи

Виды бассейнов

В наше время, строительство бассейна на территории своего участка, не такая уж и роскошь. Выбор видов и стилей бассейна, на сегодняшний день, очень большой....

Сборные фундаменты

В наше время все большую популярность при строительстве дома приобретают сборные бетонные и железобетонные блоки. Их использование значительно сокращает время работ и снижает их трудоемкость....

Проекты домов и коттеджей > Каталог проектов домов > Проект дома с подвалом и мансардой Vg1372

Проект дома с подвалом и мансардой Vg1372

Проект дома с подвалом и мансардой
Зарегистрируйтесь

Проект № Vg1372


Техническое описание
Общая площадь: 245.97 м2
Жилая площадь: 119.97 м2
Высота здания: 9.35 м
Размеры дома: 20.02м×13.92м
Кол-во комнат: 4
Цокольный этаж: нет
Гараж: нет
Мансарда: есть

Kонструкция
Фундамент: Ленточный
Перекрытия: Монолитная ж/б плита
Материал стен: Опалубка

Архитектурный раздел
Конструктивный раздел
АР+КР - 64 000 (Со скидкой 20%)
Проект индивидуального однотажного жилого дома с мансардой и подвалом с размерами здания 20,02 х 13,92 м. Наружная отделка здания – фасадная штукатурка. Фундамент – ленточный монолитный ж/б (под несущими стенами). Наружные стены – несъемная опалубка с отделкой фасадной штукатуркой. Внутренние стены - несъемная опалубка Перегородки – из газобетонных блоков. Пол подвала - пол по грунту. Межэтажное перекрытие – монолитная ж/б плита. Крыша металлочерепица. Кровля – двускатая. Окна - металлопластиковые, выполненные по индивидуальному заказу.
Генплан застройки участка / Паспорт проекта 7000 руб / 10000 руб
Инженерный раздел (полный) 123000 руб
Смета на строительство 61500 руб
Теплотехнический расчет материалов стен Бесплатно
Стоимость проекта со незначительнми изменениями 73850 руб
Стоимость проекта со средними изменениями* 92300 руб
Стоимость проекта со значительными изменениями** 97200 руб

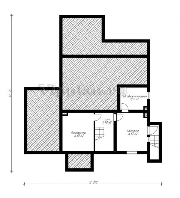
План цокольного этажа


Холл — 4,90 кв м
Постирочная — 14,85 кв м
Подсобка — 7,52 кв м
Бойлерная — 14,53 кв м

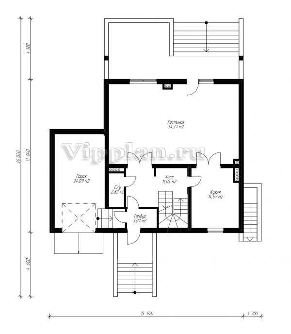
План первого этажа


Тамбур — 3,07 кв м
Холл — 11,05 кв м
С/у — 2,82 кв м
Гостиная — 54,37 кв м
Кухня — 14,57 кв м
Гараж — 24,09 кв м

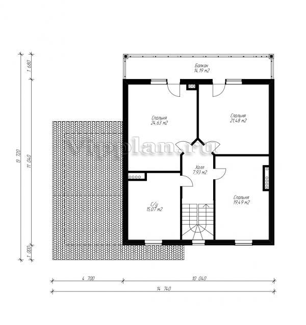
План мансардного этажа


Холл — 7,93 кв м
Спальня — 24,63 кв м
Спальня — 21,48 кв м
Спальня — 19,49 кв м
С/у — 15,07 кв м
Проект дома с подвалом и мансардой Проект дома с подвалом и мансардой Проект дома с подвалом и мансардой Проект дома с подвалом и мансардой
Внесение изменений и привязка к участку строительства

В любой из проектов от компании VIPplan - Ликино-Дулево по вашему желанию могут быть внесены изменения в материалы стен, материалы наружной отделки дома, а также будет произведена адаптация проекта под конкретный регион строительства (с учетом грунтов региона, геологических особенностей вашего участка и местных климатических условий) - БЕСПЛАТНО !!! (кроме проектов со скидкой и проектов наших партнеров).

Любой из проектов, размещенных на сайте likino-dulevo.vipplan.ru мы можем выполнить из требуемых вам строительных материалов: ячеистый бетон (газобетон, пеноблок), керамоблок, кирпич, шлакоблок, бетонный блок, дерево (брус, клееный брус), каркасная технология (деревянный каркас, металлокаркас (ЛСТК)).

Фасад дома и его наружную отделку так же возможно выполнить с применением различных облицовочных материалов: структурной штукатурки, (с утеплителем и без), сайдингом (пластиковый или металлосайдинг), фиброплитами, кирпича.

 
6 Избранные
проекты

Доставка проектов по России: Москва (Московская область), Санкт-Петербург (Ленинградская область), Краснодар, Ростов-на-Дону, Ставрополь, Сочи, Волгоград, Новосибирск, Белгород, Брянск, Воронеж, Саратов, Хабаровск, Астрахань, Нальчик, Владикавказ, Екатеринбург, Тюмень, Самара, Нижний Новгород, Казань, Пермь, Уфа, Челябинск, Красноярск, Ханты-Мансийск, Иркутск, Курган, Оренбург, Омск, Томск, Барнаул, Новокузнецк, Кемерово, Абакан, Чита, Якутск, Южно-Сахалинск, Петропавловск-Камчатский и страны ближнего зарубежья: Белоруссия, Украина, Казахстан